Циклон ЦБ-16 в Беларуси

Цена с НДС:
468 000 рублей
Цена с НДС на циклон ЦБ-16 с доставкой в
от 468 000 рублей
Условия в
В наличии на складе
Доставка ТК по России и Казахстану
Безналичный расчет
Есть в наличии
ЦБ циклон
Циклон ЦБ
Циклоны батарейные ЦБ
Батарейные циклоны ЦБ
Циклон ЦБ производство
Производство циклонов ЦБ
ЦБ циклон для очистки воздуха от пыли
Циклон ЦБ для очистки воздуха от пыли
Циклон ЦБ промышленный
Промышленный циклон ЦБ
Отверстия выхлопных труб ЦБ циклона
Отверстия выхлопных труб циклона ЦБ
Циклоны ЦБ завод изготовитель
Завод изготовитель циклонов ЦБ
ЦБ циклон
Циклоны батарейные ЦБ
Циклон ЦБ производство
ЦБ циклон для очистки воздуха от пыли
Циклон ЦБ промышленный
Отверстия выхлопных труб ЦБ циклона
Циклоны ЦБ завод изготовитель
Видеообзор
Применяемость Котел ДКВр-2,5-13; КЕ-2,5-14СО; УСШ 2,5 -14
Производительность циклона от 6500 до 11000 м³/ч
Технические
характеристики
Описание
товара
Сертификаты
и гарантии

Технические характеристики циклона ЦБ 16

Вид Циклон ЦБ
Тип циклона Батарейный, Циклон ЦБ
Количество элементов 16 шт
Внутренний диаметр циклонного элемента 245 мм
Запыленность входных газов 600 г/ м³
Степень очистки газов 80 %
Допустимая температура газов на входе до 300 °C
Габаритные размеры: длина, ширина, высота 1800*1325*3095 мм
Применяемость Котел ДКВр-2,5-13; КЕ-2,5-14СО; УСШ 2,5 -14
Масса 1670 кг
Производительность циклона от 6500 до 11000 м³/ч
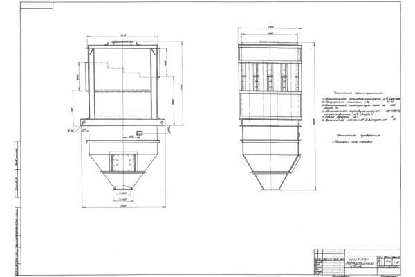
Чертеж циклона ЦБ-16
Циклон ЦБ-16 чертеж

Промышленный циклон ЦБ-16 в Беларуси

Батарейный циклон ЦБ 16 применяется для очистки запылённых газов или воздуха от твёрдых частиц неслипающейся пыли или золы с размерами частиц более 5 мкм и для улавливания:

  • золы в промышленных котельных и на тепловых электростанциях;
  • угольной пыли в сушильных установках обогатительных и брикетных фабрик и системах промышленной вентиляции;
  • неслипающейся пыли в различных отраслях хозяйства.

Принцип работы циклона

Дымовые газы поступает во входное окно циклона ЦБ-16 и засасывается во входные патрубки циклонных элементов. Под действием гравитационных и центробежных сил из потока запылённого газа сепарируются частицы золы, которые осаждаются в бункере-накопителе. Зола периодически удаляется через шибер или другие устройства для выгрузки. Очищенные газы отводятся из циклона через выходное окно.

Технические характеристики циклона ЦБ 16

Наименование ЦБ-16
Номинальная производительность, м³/ч 6500
Коэффициент очистки, % 80
Расчетная температура на входе, С 300
Аэродинамическое сопротивление, кгс/см2 100
Запыленность поступающих газов, г/м3 600
Габариты (LxDxH), мм 1800
1325
3095
Масса, кг 1670
Количество циклонных элементов 16
Расчетное давление внутри циклона не более 4 Па (кгс/м³)
Применяемость циклона ЦБ 16 с котлами ДКВр-2,5-13; КЕ-2,5-14СО

Конструкция циклона ЦБ 16

Циклон батарейный ЦБ-16 представляет собой сварной корпус, в котором установлены ряды параллельно расположенных циклонных элементов с полуулиточным вводом газов в них.

Циклон батарейный ЦБ-16 делится на три части: верхняя камера очищенных газов, средняя камера запылённых газов, нижняя - бункер сбора пыли.

Циклонные элементы ЦБ-16 состоят из полых цилиндрических корпусов с конусной частью внизу и входными патрубками с аппаратами закручивания (полуулитками). Внутри элементов вертикально установлены выхлопные патрубки. Циклонные элементы в циклоне ЦБ-16 устанавливаются ступенчато по ходу движения газов так, что входные патрубки циклонных элементов последующего ряда располагаются ниже предыдущего. Нижние крышки входных патрубков последнего по ходу газа ряда циклонных элементов являются частью нижней трубной доски, что обеспечивает вынос пыли, осевшей на нижней трубной доске. На верхней крышке циклона ЦБ-16 установлен взрывной клапан.

Циклон ЦБ-16 опирается на опорный пояс.

Циклон ЦБ-16 поставляется единым транспортабельным блоком.

Купить циклон ЦБ-16 в Беларуси

Для того чтобы купить циклон ЦБ-16 в Беларуси вы можете сделать заявку в отдел сбыта по телефону 8-800-700-0643, либо оформить заказ онлайн. Инженеры-консультанты дадут консультацию и рассчитают стоимость доставки. Транспортирование может осуществляться автотранспортом, ж/д полувагонами и речным транспортом.

Сертификаты и гарантии циклона ЦБ 16

Сертификат для золоуловителей
Сертификат на золоуловители

Отзывы о продукции

Другая похожая продукция

45 000 ₽
Цена по
запросу
949 000 ₽
310 000 ₽